Préparation du devis
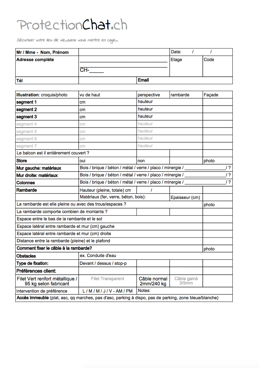
Afin de nous permettre de réaliser un devis pour la sécurisation de votre logement, nous vous invitons à télécharger/imprimer le formulaire ci-dessous
Cadres de sécurité pour chats: fenêtres et portes
Afin de nous permettre de réaliser un devis pour la sécurisation de votre logement, nous vous invitons à télécharger/imprimer le formulaire ci-dessous